<<< zpět na seznam bytů <<<

BYT č. 34 na 3. podlaží

Zde získáte všechny důležité informace o bytu.
Kompletní informace o bytu získáte i v PDF zde ke stáhnutí.

Byt 34
dispozice3+1
plocha97,21 m2
komoraano
balkón14,9 m2
garáž. stáníano
cena3 990 000
800 888 303

Kalkulátor

Orientační hypoteční kalkulačka.

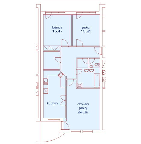
Půdorys

byt-34
chodba11,72 m2
WC1,65 m2
komora1,62 m2
koupelna6,96 m2
obývací pokoj24,32 m2
kuchyň16,73 m2
šatna4,83 m2
ložnice15,47 m2
pokoj13,91 m2
celkem97,21 m2

Uvedené údaje jsou orientační. Přesné rozměry budou uvedeny po dokončení stavby.

zpět nahoru

Materiály a provedení bytové jednotky

Hrubá stavba

  • Nosná konstrukce objektu – železobetonový skelet s vyzdívaným obvodovým pláštěm
  • Vnější stěny – porotherm 30 PD + zateplovací systém
  • Vnitřní příčky – VG-orth
  • Střešní systém - rovná střecha s povlakovou krytinou
  • Zábradlí balkónů a teras – ocelové

Úpravy povrchů, podlahy

Stěny

  • Keramické obklady Rako do výšky 2 metrů koupelna, toaleta
  • Omítky sádrové + malba bílá 2x nátěr

Stropy

  • Povrchová úprava stropů – sádrové, SDK

Podlahové krytiny

  • Obytné místnosti,kuchyňský kout – koberec/PVC
  • Zádveří (chodba) bytu, komora – PVC
  • Koupelna, WC – dlažba Rako
  • Terasy, balkóny – venkovní mrazuvzdorná dlažba

Výplně otvorů

Dveře

  • Vchodové dveře do bytů – hladké plné protipožární – imitace dřeva
  • Kování – klika – koule, bezpečnostní zámek, kukátko
  • Zárubeň u vchodových dveří – ocelová s nátěrem
  • Práh – dřevěný

Dveře interiérové

  • V celém bytě budou obložkové zárubně
  • Dveře hladké, částečně členěné
  • Kování ocelové

Okna

  • Okna a balkonové dveře – plastová
  • Celoobvodové kování, mikroventilace

Sanita

  • Plechová vana 160x70 cm, umyvadlo 55 cm, WC kombi
  • nebo sprchový kout 80x80cm se zástěnou (hliníkový rám, výplň syntetické sklo)
  • Baterie pákové s keramickou kartuší

Instalace ZTI, ÚT

  • Rozvody vody- PPR (polypropylen)
  • Přípojka na pračku (koupelna)
  • Přípojka na myčku (kuchyň)
  • Vodoměr teplé a studené vody
  • Bytové rozvody ÚT v potrubí AL-PEX (pvc s hliníkovou fólií)
  • V servisní skříňce bude osazen kalorimetr – měření spotřeby odebraného tepla

Topení, ohřev TUV

  • Centrální výměníková stanice v suterénu napojená na horkovod ČEZ, regulace ekvitermní
  • Desková ocelová tělesa Korado typ Radik s termostatickou hlavicí
  • V koupelnách trubková tělesa (topné žebříky) Korado s termostatickou hlavicí

Elektroinstalace

  • Zásuvky a vypínače TANGO
  • Světlo stropní v místnostech bez denního osvětlení (toaleta, koupelna, komora)

Slaboproud

  • Telefonní zásuvky std. ABB Tango
  • STA na střeše
  • Rozvod Internetových zásuvek po bytě
  • Domácí telefon – elektricky ovládaný zámek vstupních dveří do domu se zvukovou signalizací

Kuchyň

  • Kuchyňská linka není zahrnuta v ceně. Linka může být instalována v průběhu výstavby.

Sklepy

  • Samostatné

Garáže –parkování

  • Parkovací stání ve společné hromadné garáži v přízemí

Nadstandardní vybavení

  • Vnitřní standardní vybavení bytů je možno individuálně zaměnit za jiné (dřevěné podlahy, koberce, dveře různých typů a druhů dřeva, vířivé vany, sprchové kouty atd.) Výsledná cena těchto změn je dána rozdílem cen vybraného a standardního vybavení.

Materiálové změny při zachování stejných kvalitativních parametrů vyhrazeny.

zpět nahoru

Termíny výstavby

08/2009 - Vydání stavebního povolení
09/2009 - Zahájení výstavby
12/2010 - Předpokládané dokončení

zpět nahoru

Rezervace a platba

1. Vratný rezervační poplatek 50 000 Kč je splatný do doby zahájení výstavby. V případě zrušení rezervace bude poplatek vrácen v plné výši do 10 pracovních dnů.

2. Po zahájení výstavby dojde k podepsání Smlouvy o smlouvě budoucí a zaplacení poplatku 100 000 Kč.

3. Po 90 dnech od podpisu Smlouvy o smlouvě budoucí Vám bude účtován doplatek do 15 % (ca. 598500 Kč) z ceny bytové jednotky.

4. Po dokončení hrubé stavby Vám bude účtován doplatek do 40 % (ca. 1596000 Kč) z kupní ceny. V případě financování úvěrem možna domluva jiných podmínek.

5. Do 15 dnů po vydáni kolaudačního rozhodnutí Vám bude účtován doplatek kupní ceny bytu (ca. 1645500 Kč).

Všechny zálohy budou placeny na vázaný účet vedený u financující banky. Tím bude zaručena jistota klienta, že s jeho penězi nebude nakládáno jinak.

zpět nahoru

Kontaktní formulář

Zvolte si Vaše požadavky
Více informací k tomuto bytu č.34
Osobní prohlídku tohoto bytu č.34
Osobní schůzku s prodejcem
Rezervovat tento byt č.34
Vaše jméno
email
telefon
poznámka
email kontrolní
zadejte stejný jako výše jinak nebude formulář odeslán
zpět nahoru